Rezidenční Bungalov Rymice
Domov, kde kvalita není vidět jen na povrchu
Když jsem začal s majitelem řešit prodej tohoto domu, původně jsem očekával běžný scénář, jaký se opakuje u většiny nemovitostí. Jenže postupně se ukázalo, že tady nešlo o snahu vytvořit hezkou fasádu pro inzerát, ale o poctivou stavbu, která má obstát v běžném životě dlouhé roky dopředu. A důkaz je ve věcech, které nejsou vidět na první pohled… kvalitní izolace, zateplení základů do metru hloubky (na svislých základových stěnách je 10 cm polystyrenu) a podlahový WEBER EPS o tloušťce 20 cm na základové desce, plus stropy zateplené minerální vatou Isover 40 cm. Technologické postupy bez zkratek a více než tři stovky fotek dokumentujících každý krok výstavby. Když přijedete na místo a vidíte prostor kolem domu a logiku jeho řešení, pochopíte, že developerské rychlovky stavěné na marži tomu nesahají ani na dohled. Tenhle dům se stavěl pro sebe, ne pro trh. A já Vám chci přesně tohle ukázat, protože pokud hledáte dům, který si umí obhájit cenu kvalitou pod povrchem, tak tenhle si opravdu zaslouží Vaši pozornost.
Tenhle dům nevznikal proto, aby zaujal první fotkou v inzerátu. Ten dům vznikal pro reálný život. A poznáte to v momentě, kdy tady zastavíte auto a vystoupíte. Pozemek s 2 065 m² poskytuje skutečný odstup od sousedů i veřejného prostoru, dovolí bezpečný pohyb, přehledné uspořádání zón a zároveň ponechá rezervu pro to, co budete chtít řešit později. Je tu ticho, není tu tlak z okolí, máte tu místo pro rodinu, pro děti i pro normální fungování. Zpevněné příjezdové plochy drží i po dešti, nemusíte tu řešit žádné brodění přes bahno. A přízemní dům s portály směrem do zahrady nepůsobí jako “hezký architektonický efekt”. Je to prostě přirozené prodloužení obytného prostoru.
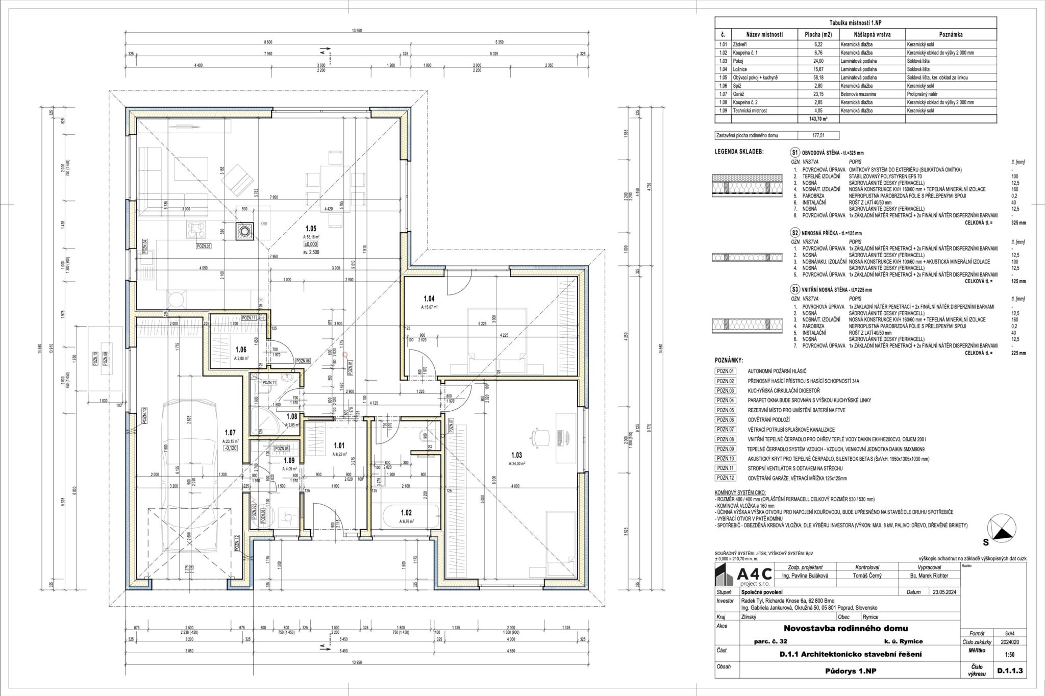
Užitná plocha 1. NP cca 144 m²
Garáž v domě ~23,1 m²
2 ložnice (24,1 m² + 15,8 m²)
Parkování na pozemku 2+ stání
Rozsáhlý pozemek 2 065 m²
Vytápění: elektrika + krbová kamna
Energie: FVE 5 panelů (~2,1 kWp)
10.697.000 Kč
Virtuální prohlídka domu
Nechci, abyste si museli všechno představovat jen z fotek. Máme hotový 3D model domu. Můžete si ho projít digitálně i v plné virtuální realitě.
Kuchyň vznikla u truhláře, ne výběrem hotového modelu. Každý rozměr a provedení bylo řešené tak, aby se dalo používat denně, ne jen jednou za čas. Architekt navrhl hloubky, logiku ukládání i provázání s prostorem tak, aby to celé dávalo dlouhodobě smysl.
Kuchyň je osazená hlavními spotřebiči Electrolux a myčkou Candy, která byla vybrána cíleně kvůli rozměrům a praktičnosti pro tohle konkrétní řešení.
Do čela kuchyně je integrovaný vstup do spíže. Není “bokem” ani jako rušivý prvek. Je součástí celku, díky čemuž máte skladování a provoz vyřešené čistě, přímo u zdroje a bez narušení linky. To je přesně ten typ řešení, který v provozu poznáte okamžitě.
Krbová kamna nejsou dekorace. Komín má dvojité opláštění, které předehřívá vzduch ještě před spálením. Díky tomu kamna topí efektivněji, spalování je čistší a teplo zůstává v prostoru, ne v komínu. A navíc jsou otočná, takže si je můžete natočit směrem, kam chcete teplo posílit.
Pro lepší představu práce s prostorem jsme vytvořili vizualizaci, která ukazuje jedno z možných uspořádání nábytku a funkčních zón. Ne jako návrh „jak to musí být“, ale jako čitelný scénář, jak tenhle prostor může fungovat v reálném životě.
Tady není klimatizace jen „na léto“. Midea z vyšší třídy zvládne udržet ideální klima po celý rok… v létě ochladí, v zimě přitopí během pár minut. Tichá, úsporná a překvapivě svižná. Prostě systém, který funguje přesně tak, jak má.
Okno přímo u multifunkčního dřezu má smysl. Nejen proto, že během dne uvidíte přirozené světlo místo umělého podsvícení linky, ale i proto, že máte neustálý vizuální kontakt s děním na zahradě. Kdo má děti, ocení to okamžitě… nemusíte odbíhat a kontrolovat venek každé dvě minuty.
Tohle řešení polic má výhodu v tom, že odděluje prostor bez toho, aby bralo světlo. Jsou to skutečné masivní prvky, které tu dávají prostoru rytmus a zároveň řeší funkci. Knihy, sklo, víno, design… každý si tu najde svoje místo.
Ložnice je samostatná a připravená k okamžitému využití. A vedle ní je velký pokoj, který se dá v případě potřeby jednoduše rozdělit na dva dětské pokoje. Každý by měl vlastní okno a vlastní přirozené světlo.
Obklady na stěnách jsou ve formátu 120 × 60. A přesně u takového formátu začíná koupelna působit jako plnohodnotný prostor, ne jako malá mozaika spár. Je to čisté, klidné, nadčasové řešení, které zbytečně nestárne a drží jednotnou linii celého interiéru.
Na detailech je vidět, že se tady nešetřilo na věcech, které rozhodují o životnosti. Obložení vany není samoúčelný vzor, ale poctivý materiál, který drží. A druhá koupelna navazuje logicky… místo další vany je tady sprchový kout, umyvadlo i toaleta v jednom prostoru. To znamená, že denní provoz není limitovaný jednou variantou, ale máte možnost volby podle situace.
V technické místnosti najdete veškerou elektroniku k FTV a připravené připojení na pračku a sušičku, oboje na epoxidové podlaze.
V garáži je vyvedený ventil na vodu pro hadici, zásuvka 400V/32A a samozřejmě i tady je také podlaha řešená epoxidem.
Pro pojezdovou bránu je už vše kompletně připraveno… přívod elektriky je vyvedený u výjezdu, kabeláž je dotažená k výjezdu před domem, takže stačí pouze připojit motor a brána může fungovat. Invertorové tepelné čerpadlo Midea zvládne pokrýt celou sezóně… v zimě spolehlivě topí, i když teploměr spadne pod −20 °C, a v létě funguje jako klimatizace. Stabilní výkon, tichý chod a rozumná spotřeba.
A pokud Vás někdy napadlo, že by bazén mohl být další logický krok… tady se o tom nemusí jen přemýšlet. Ten krok už je připravený. Máme zaplacenou zálohu na sedmimetrový zastřešený bazén od Mountfieldu, zakoupený ještě za cenu roku 2023… tzn. v době, kdy byly ceny úplně jinde než dnes. Tahle rezervace je stále platná a může přejít přímo na Vás. To znamená, že až se rozhodnete bazén realizovat, nebudete řešit realitu dnešních cen, ale budete těžit z výhody, která už se dnes prakticky nedá získat.
Součástí pozemku je ČOV Aquatec AT6 s kapacitou do 6 osob, řízená mikroprocesorem a koncipovaná jako bezúdržbová.
Na zadní straně domu je také vyveden venkovní ventil na hadici… ideální pro napojení závlahy nebo pozdější bazén. Voda je řešená vlastní vrtanou studnou o hloubce 33 metrů, přičemž první vodu to mělo už od 7 metrů, ale majitel nechal vrtat dál, aby měl jistotu kvality. Investice čtvrt milionu, kterou pijete každý den.




